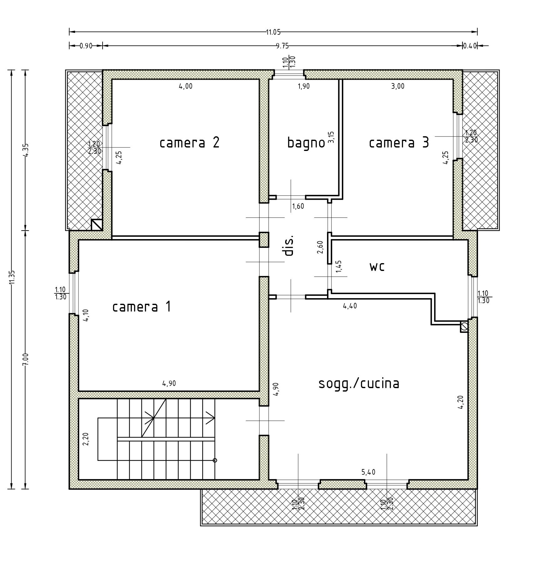
Sulla Strada Provinciale Valtesino, in posizione comoda e ben servita, proponiamo in Vendita due appartamenti allo stato grezzo avanzato , situati al primo e secondo piano di una piccola palazzina con ingresso riservato .
Le unità immobiliari, già divise internamente , offrono la possibilità di essere ultime secondo i propri gusti e le proprie esigenze, realizzando per ciascun Appartamento:
🛋️ soggiorno con cucina a vista
🛏️ tre camere da letto
🚿 due bagni
🌅 tre balconi
Un'occasione ideale per chi desidera personalizzare la propria casa o per chi cerca una soluzione abitativa doppia (genitori e figli, investimento e residenza, ecc.), ad un prezzo vantaggioso .
👉 È inoltre possibile affidare la realizzazione "chiavi in mano" a un'impresa locale referenziata e di fiducia .
💰 Il prezzo indicato si riferisce all'intero blocco , ovvero entrambi gli appartamenti .
Un'opportunità unica per chi vuole costruirsi il proprio futuro a Grottammare!

110 mq
3
2